Bostadsbolag vill bygga parhus i Sunne
Acasa Bostad AB har fått ett markanvisningsavtal godkänt för att bygga bostäder på fastigheterna Torvnäs 1:50 och 1:51 i Sunne. Ett stenkast från Sunne centrum och sjön Fryken. I en första etapp planeras 10-12 bostadsrättslägenheter i parhus.
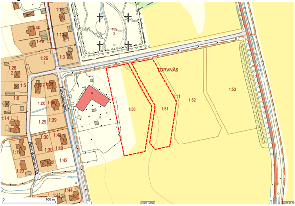
Området på Torvnäs uppgår totalt till 16 133 kvadratmeter och ligger öster om förskolan. I området finns fyra avstyckade tomter. Denna ansökan omfattar de två tomterna närmast förskolan.
– Under markanvisningstiden avser Acasa Bostad att undersöka om efterfrågan är tillräckligt stor för att bygga även en etapp 2, säger Anders Olsson, utvecklingsledare i Sunne kommun.
Avtalet gäller till och med 30 september 2026.

Acasa AB vill bygga parhus på Torvnäs i Sunne.